トップページ > 岡山市南区豊浜町 

販売物件情報

  • お気に入りリストを見る
  • 物件情報を印刷する
  • プリンタの設定で「背景を印刷する」と設定しないと「背景画像」が印刷されないことがあります。印刷の際には、必ず「背景を印刷する」設定にしてください。

土地

岡山市南区豊浜町 

画像

この物件のお支払い例

頭金0円/ボーナス払い0円

物件価格693.75万円

月々の支払い19,182

※上記支払例の借入条件:金利0.9%、借入総額693.75万円、借入期間35年

所在地・交通

所在地 岡山市南区豊浜町 
最寄駅 徒歩分数
最寄バス停 岡電バス 浜野西 徒歩分数 6分
小学校校区 岡山市立福浜小学校 中学校校区 岡山市立福浜中学校

※学校区は住所から自動判定したものであり、保証できる情報ではございません。正確な学校区はお問い合わせ下さい。

お問い合わせフォームはこちら

「人型アイコン」を地図上にドラッグすることで『Google Street View』に切り替わります。

※地図上の「対象地」は「〒700-0853 岡山県岡山市南区豊浜町」の場所を指しています。実際の場所ではない場合がございます。詳しくはお問い合わせください。

お問い合わせフォームはこちら

物件概要

価格 693.75万円 種目 売地
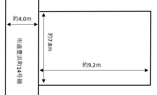
土地面積 91.72㎡ 私道面積
建ぺい率/容積率 60%/200% 都市計画 市街化区域
接道状況 西4m 公道 接面7.8m    一方道路
地目 宅地
土地権利 地勢 平坦
用途地域 第一種住居地域
現況 更地 取引態様 媒介

取引条件等

引渡し 即時

その他

条件等
設備 プロパンガス、上水道、下水道、プロパンガス、上水道、下水道
諸条件・相談
情報登録日 2025年9月5日 情報更新予定日 2025年11月21日
物件番号 57018
最近見た物件

×

line

LINE友だち登録でお得な情報をGET!契約時のお手続きもカンタンに!

ページの先頭へ

Copyright (C) KOURAKU, All Rights Reserved.