トップページ > チサンマンション倉敷

販売物件情報

  • お気に入りリストを見る
  • 物件情報を印刷する
  • プリンタの設定で「背景を印刷する」と設定しないと「背景画像」が印刷されないことがあります。印刷の際には、必ず「背景を印刷する」設定にしてください。

中古マンション

チサンマンション倉敷

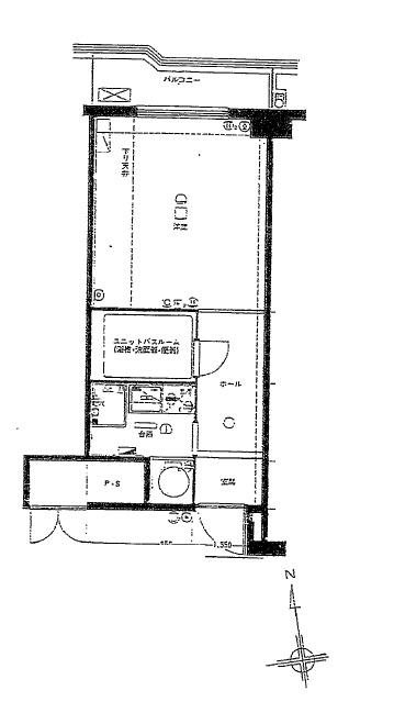
画像

この物件のお支払い例

頭金0円/ボーナス払い0円

物件価格280万円

月々の支払い7,742

※上記支払例の借入条件:金利0.9%、借入総額280万円、借入期間35年

中古+リノベーションのお支払い例

プラン
頭 金 万円

月々のお支払い19,603

ボーナス払い0円


※上記支払例の借入条件:金利0.9%、借入総額709万円、借入期間35年

所在地・交通

所在地 倉敷市昭和1丁目1-38 チサンマンション倉敷
最寄駅 山陽線 倉敷 徒歩分数 7分
最寄バス停 徒歩分数
小学校校区 倉敷市立万寿小学校 中学校校区 倉敷市立東中学校

※学校区は住所から自動判定したものであり、保証できる情報ではございません。正確な学校区はお問い合わせ下さい。

お問い合わせフォームはこちら

「人型アイコン」を地図上にドラッグすることで『Google Street View』に切り替わります。

※地図上の「対象地」は「〒710-0057 岡山県倉敷市昭和1丁目1−38」の場所を指しています。実際の場所ではない場合がございます。詳しくはお問い合わせください。

お問い合わせフォームはこちら

物件概要

価格 280万円 種目 中古マンション
間取り 1ROOM 間取り内訳
専有面積 23.07㎡ 建物構造 SRC
バルコニー面積 3.47㎡ 向き
階数 11階建 所在階 7階
築年月(竣工月) 1981年10月 駐車場有無 空無
駐車場料金 総戸数 96
管理費 4,300円 積立金 7,400円
土地権利 所有権 管理形態/方式 管理会社に全部委託/
用途地域 商業地域
現況 賃貸中 取引態様 媒介
建築確認番号

取引条件等

引渡し 相談

その他

設備 都市ガス、都市ガス、上水道、下水道
特徴
諸条件・相談
情報登録日 2025年11月6日 情報更新予定日 2025年11月28日
物件番号 58738
最近見た物件

×

line

LINE友だち登録でお得な情報をGET!契約時のお手続きもカンタンに!

ページの先頭へ

Copyright (C) KOURAKU, All Rights Reserved.