トップページ > 岡山市北区御津国ケ原 

販売物件情報

  • お気に入りリストを見る
  • 物件情報を印刷する
  • プリンタの設定で「背景を印刷する」と設定しないと「背景画像」が印刷されないことがあります。印刷の際には、必ず「背景を印刷する」設定にしてください。

土地

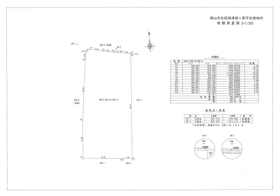
岡山市北区御津国ケ原 

画像

この物件のお支払い例

頭金0円/ボーナス払い0円

物件価格394万円

月々の支払い10,894

※上記支払例の借入条件:金利0.9%、借入総額394万円、借入期間35年

所在地・交通

所在地 岡山市北区御津国ケ原 
最寄駅 津山線 野々口 徒歩分数 15分
最寄バス停 徒歩分数
小学校校区 岡山市立御津南小学校 中学校校区 岡山市立御津中学校

※学校区は住所から自動判定したものであり、保証できる情報ではございません。正確な学校区はお問い合わせ下さい。

お問い合わせフォームはこちら

「人型アイコン」を地図上にドラッグすることで『Google Street View』に切り替わります。

※地図上の「対象地」は「岡山県岡山市北区御津国ケ原」の場所を指しています。実際の場所ではない場合がございます。詳しくはお問い合わせください。

お問い合わせフォームはこちら

物件概要

価格 394万円 種目 売地
土地面積 685.57㎡ 私道面積
建ぺい率/容積率 都市計画 都市計画区域外
接道状況 北9.4m 公道 接面16.5m 位置指定無 西3.6m 公道 接面40m 位置指定無  角地
地目
土地権利 地勢 平坦
用途地域 無指定
現況 更地 取引態様 媒介

取引条件等

引渡し 即時

その他

条件等
設備
諸条件・相談
情報登録日 2026年1月18日 情報更新予定日 2026年2月22日
物件番号 60794
最近見た物件

×

line

LINE友だち登録でお得な情報をGET!契約時のお手続きもカンタンに!

ページの先頭へ

Copyright (C) KOURAKU, All Rights Reserved.